グリーンヒルズ住吉 部屋番号:2階3階
- 賃料 36.0万円
- 福岡市博多区住吉4丁目27-12
-
福岡市七隈線 / 渡辺通駅 徒歩9分
福岡市七隈線 / 薬院駅 徒歩12分 - 2LDK(108.80㎡)
一級建築士事務所による洗練されたデザイン:3年前にデザイナーが設計・工事を手掛けた、スタイリッシュな内装が魅力です 。
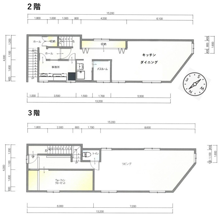
開放感あふれるメゾネットタイプ:100㎡を超える広々とした2LDKで、2階と3階を使い分けられるメゾネット構造を採用しています 。
充実のハイグレード設備:会話が弾むアイランドキッチンや、3階には3人分でも余裕で収まる大型ウォークインクローゼットを備えています 。
多様なライフスタイルに対応:住居としてはもちろん、事務所やSOHOとしての利用も相談可能です 。
- 管理物件
| 物件番号 | 260301 |
| 所在地 | 福岡市博多区住吉4丁目27-12 |
| 沿線・駅・交通 | 福岡市七隈線 / 渡辺通駅 徒歩9分 福岡市七隈線 / 薬院駅 徒歩12分 バス停 住吉 距離260m |
| 間取り | 2LDK |
| 専有面積 | 108.80㎡ |
| 駐車場 | なし バイク置場:なし 駐輪場:有 無料 |
| 敷金 | 3ヶ月 敷引:1ヶ月 |
| 礼金 | なし |
| 保証金 | なし |
| 管理費 | なし |
| 雑費 | なし(共益費なし) |
| 保険等加入 | 加入要 / 東京海上保険 3年間 50,000円 |
| 家賃保証・保証費用等 | 加入要 全保連株式会社、ジェイリース株式会社 |
| 更新料 | 旧賃料 2.20万円 |
| 鍵交換代等 | 有 22,000円〜 |
| 仲介手数料 | 賃料の1.1ヶ月 |
| 建物構造 | 鉄骨造 |
| 階 | 3階建 / メゾネット 2階〜3階部分 |
| 築年月 | 1990年06月 |
| 退去予定日 | (現況:空家) |
| 入居日 | 期日指定 2026年04月01日 |
| 入居条件 | 社宅可 事務所使用可 SOHO使用可 ペット相談(小型犬・猫可、飼育時敷引2ヶ月に変更) ルームシェア可 二人入居可 退去時エアコンクリーニング費用3台分:33,000円 |
| 設備 | 水回り: B・T別、シャワー、追焚機能、浴室暖房、浴室乾燥機、浴室に窓あり、トイレ2ヶ所、温水洗浄便座、洗面所独立、シャワー付洗面化粧台 キッチン: 3口以上コンロ、IHクッキングヒーター、アイランドキッチン 収納: 全居室収納、大型ウォークインクローゼット(3階に配置、2〜3人分収納可能) 空調・照明: エアコン2台以上、シーリングファン、間接照明、ダウンライト その他室内: 室内洗濯機置場、洗濯乾燥機、家具・家電付、給湯(都市ガス)、全居室フローリング、モニタ付インターホン 建物・構造: 3面採光、24時間換気システム、メゾネット構造、屋上利用可 外装・共有部: 駐輪場(入口階段下に2台分スペースあり) |
| 取引形態 | 専任媒介 |
物件お問合せ
お問合せ情報を入力の上、送信ください。内容を確認の上、ご連絡を差し上げます。
【博多・住吉】
デザイナー監修の贅沢メゾネット。
住居兼事務所としても理想的な108㎡超えの空間